Telefon: (06031) 88 600

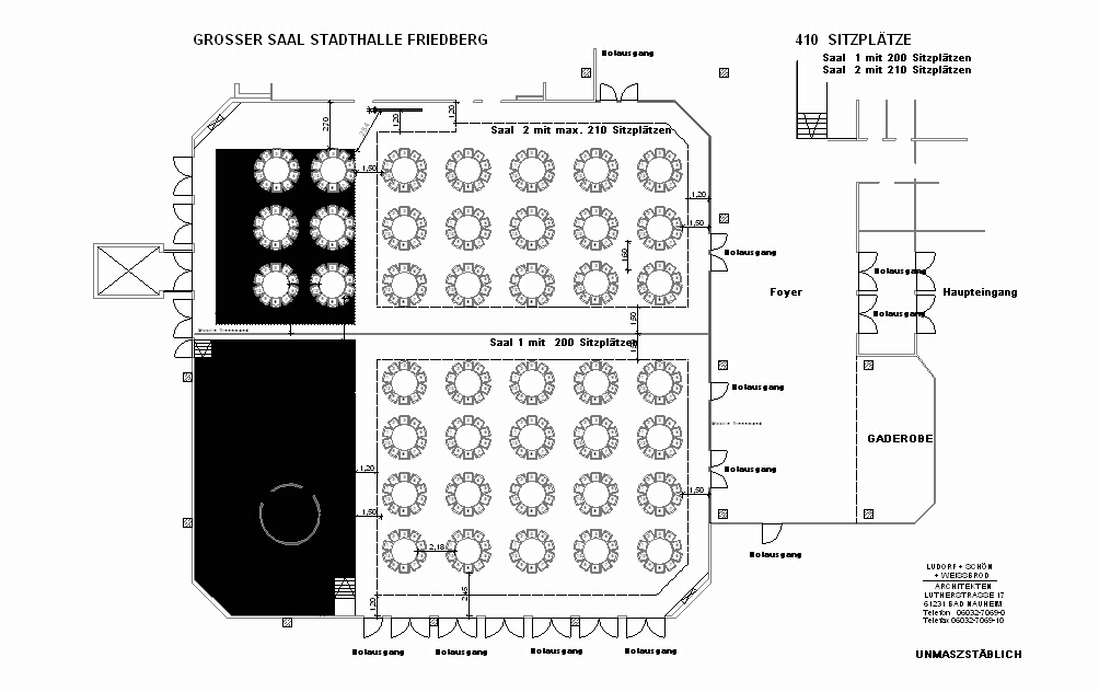
Saal 1+2